пуста
Время приёма звонков с 8.00 до 21.00
+7 (920) 158-00-08
+7 (920) 698-53-22
ООО "ТверьЭкоСтрой"

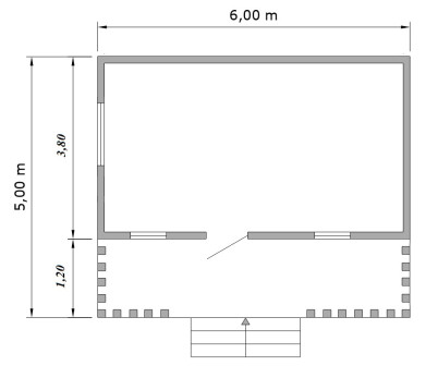
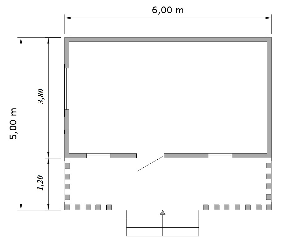
Бытовка с террасой БС-4 VIP

Габаритный размер (д*ш*в) 6,0х5,0х3,20м Высота потолков 2,05 м Нижняя обвязка Брус 150х100 мм Лаги пола Брус 150х40 мм. Стропила брус 50*200 мм. Пароизоляция Б и ветрозащита А. Утепление 100 мм (минеральная вата "URSA") Черновой пол Обрезная доска 25 мм Чистовой пол - половая доска 27 мм Каркас Брус 40*100 мм. Внутренняя отделка Деревянная вагонка хвойных пород (класс А,В) Наружная отделка Деревянная вагонка хвойных пород (класс А,В), окрашена декоративно-защитным составом Окна (ш*в) ПВХ в кол-ве 3 шт. Входная дверь - металлическая, утепленная в кол-ве 1 шт. Крыша Двускатная. Кровля Оцинкованный проф лист толщиной 0,4 мм.
580 000 ₽
Длина6 м.
Утепление100 мм.
Отделка внутренняяВагонка деревянная
Отделка наружнаяВагонка
КонструктивДеревянный каркас
Фото
Не нашли подходящего проекта?
Оставьте заявку и мы подберем для вас индивидуальное решение.
0
Корзина покупок
Корзина пуста
Продолжить покупки