0
товаров
на сумму 0
р.
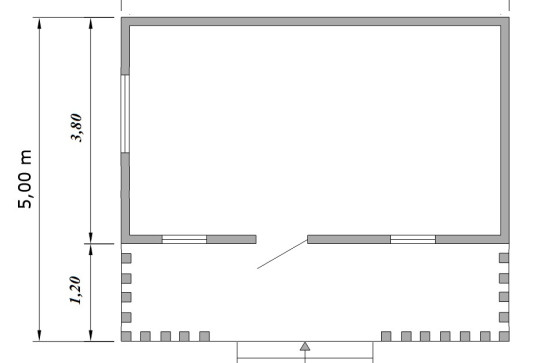
Габаритный размер (д*ш*в) 6,0х5,0х3,20м
Высота потолков 2,05 м
Нижняя обвязка Брус 150х100 мм Лаги пола Брус 150х40 мм. Стропила брус 50*200 мм.
Пароизоляция Б и ветрозащита А.
Утепление 100 мм (минеральная вата "URSA")
Черновой пол Обрезная доска 25 мм
Чистовой пол - половая доска 27 мм
Каркас Брус 40*100 мм.
Внутренняя отделка Деревянная вагонка хвойных пород (класс А,В)
Наружная отделка Деревянная вагонка хвойных пород (класс А,В), окрашена декоративно-защитным составом
Окна (ш*в) ПВХ в кол-ве 3 шт.
Входная дверь - металлическая, утепленная в кол-ве 1 шт.
Крыша Двускатная. Кровля Оцинкованный проф лист толщиной 0,4 мм.